Viikkotiedote 43-45/2025
NCC rakentaa uuden yläkoulurakennuksen Liedon kaupungille. Rakennettava koulu on noin 500 oppilaan yläkoulu, joka tarjoaa opetusta 7.–9. luokan oppilaille. Uusi koulurakennus valmistuu keväällä 2026. Rakennustöiden valmistuttua tontilla oleva nykyinen yläkoulukäytössä oleva koulurakennus puretaan ja piha-alueet viimeistellään vuoden 2026 loppuun mennessä.
Työturvallisuus
Rakennustyöt aiheuttavat muutoksia Koulumäen liikenne- ja pysäköintijärjestelyihin. Kaikille turvallisen ympäristön takaamiseksi on osoitettuja kulkureittejä, ohjeistuksia ja liikenteen kielto-, opastus- ja varoitusmerkkejä on noudatettava!
Jokaisen työmaalla työskentelevän ja vierailevan henkilön tulee käyttää NCC:n yleisen ohjeen mukaisia suojavarusteita.
Työmaalla suoritetaan viikoittain turvallisuusmittauksia.
Viikon 45 TR- mittaustulos oli 99,55% työmaan sisäisessä mittauksessa.
Viikon 44 TR- mittaustulos oli 99,30% työmaan sisäisessä mittauksessa.
Viikon 43 TR- mittaustulos oli 99,38% työmaan sisäisessä mittauksessa.
Työmaa-alueella on työajan ulkopuolella kameravalvonta!
Työmaatilanne
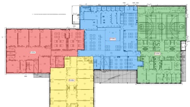
Rakennuksen pohja on jaettu neljään lohkoon (A-D) alla olevan kuvan mukaisesti. Työt etenevät lohkoittan A--> B --> C -->D

Käynnissä olevat työvaiheet:
- Liikuntasalin lattia-asennus ja listoitus
- Talotekniikka-asennusten viimeistely
- Ilmanvaihdoin mittaus ja säätö
- Urakoitsijoiden itselleluovutukset ja viimeistelytyöt 1. ja 2.krs

Kuva: Liikuntasalin lattia-asennus käynnissä ja listoitustyöt sekä rajamerkintöjen maalaus alkamassa.








Kuvat: Viimeistelytyöt käynnissä luokkahuoneissa ja hallinnon tiloissa.



Kuvat: Valmistuskeittiön ja ruokalan tilat myös viimeistelyä ja koekäyttöä vaille valmiit.
Valmistuneet työvaiheet:
- Varavoimakoneen asennus


Kuvat: Varavoimakone asennettu


Kuvat: IV-konehuoneen työt pääosin valmiit. Viimeistely ja testaustyöt käynnissä.
Alkavat työvaiheet:
- Liikuntasalin pelikenttämaalaukset
- Opastetyöt
- Toimintakokeet ja tarkastukset mm.
- Hissin käyttöönottotarkastus
- Kaukolämmön lopputarkastus
- Valmistuskeittiön koekäyttö
- Varavoimaan käyttöönottotarkastus
- Rakennusvalvonnan ennakkotarkastus
Rakentavin terveisin
NCC Suomi Oy:n työmaan väki
