Viikkotiedote 19/2025
NCC rakentaa uuden yläkoulurakennuksen Liedon kaupungille. Rakennettava koulu on noin 500 oppilaan yläkoulu, joka tarjoaa opetusta 7.–9. luokan oppilaille. Uusi koulurakennus valmistuu keväällä 2026. Rakennustöiden valmistuttua tontilla oleva nykyinen yläkoulukäytössä oleva koulurakennus puretaan ja piha-alueet viimeistellään vuoden 2026 loppuun mennessä.
Työturvallisuus
Rakennustyöt aiheuttavat muutoksia Koulumäen liikenne- ja pysäköintijärjestelyihin. Kaikille turvallisen ympäristön takaamiseksi on osoitettuja kulkureittejä, ohjeistuksia ja liikenteen kielto-, opastus- ja varoitusmerkkejä on noudatettava!
Jokaisen työmaalla työskentelevän ja vierailevan henkilön tulee käyttää NCC:n yleisen ohjeen mukaisia suojavarusteita.
Työmaalla suoritetaan viikoittain turvallisuusmittauksia.
Viikon 19 TR- mittaustulos oli 98,15% työmaan sisäisessä mittauksessa.
Liedon keskuskoulun työmaa saavutti 2.sijan talorakennusalan Lounais-Suomen alueen työturvallisuuskilpailun valtakunnallisesti toimivien rakennusliikkeiden sarjassa vuonna 2024.


Kuva: Kunniakirjan kävivät noutamassa koko työmaan puolesta työmaan työsuojeluvaltuutettu Jenni Laiho, työsuojelupäällikkö Janne Virtanen ja vastaava työnjohtaja Roope Mäkinen
Työmaa-alueella on työajan ulkopuolella kameravalvonta!
Työmaatilanne
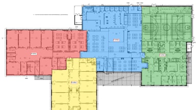
Rakennuksen pohja on jaettu neljään lohkoon (A-D) alla olevan kuvan mukaisesti. Työt etenevät lohkoittan A--> B --> C -->D

Käynnissä olevat työvaiheet:
- Talotekniikan asennustyöt
- Maanrakennustyöt
- Alakattotyöt 2.krs C-lohko
- Vedeneristys- ja laatoitustyöt B- ja C-lohko 1.krs
- Käytävien lattialaatoitukset A-lohko 1.krs
- Sisääntulokatosten puutyöt A- ja B-lohko
- Epoksilattiat A-lohko 1.krs

Kuva: Ensimmäinen epoksilattia lakkausta vaille valmiiksi pinnoitettu

Kuva: Alakattoon asennettavien valaisimien asennukset aloitettu A-lohkon 2.krs

Kuva: A-lohkon 1.krs käytävien lattialaatoitus käynnissä

Kuva: Astianpalautuksen valmis akryylimassalattia suojattu ja laatoitustyöt käynnissä alapalojen osalta
Valmistuneet työvaiheet:
- Tasoitetyöt C-lohko 1.krs
- Maalaustyöt B-lohko 1.krs
- Valmistuskeittiön akryylimassalattia
- Pääsisäänkäynnin ja keittiön katosten teräsrunkojen asennus


Kuvat: Pääsisäänkäynnin ja keittiön katosten teräsrungot asennettu
Alkavat työvaiheet:
- Tasoitetyöt D-lohko 1.krs
- Maalaustyöt C-lohko 1.krs
- 1.krs käytävän laatoitustyöt B-lohko
Rakentavin terveisin
NCC Suomi Oy:n työmaan väki
