Viikkotiedote 21/2025
NCC rakentaa uuden yläkoulurakennuksen Liedon kaupungille. Rakennettava koulu on noin 500 oppilaan yläkoulu, joka tarjoaa opetusta 7.–9. luokan oppilaille. Uusi koulurakennus valmistuu keväällä 2026. Rakennustöiden valmistuttua tontilla oleva nykyinen yläkoulukäytössä oleva koulurakennus puretaan ja piha-alueet viimeistellään vuoden 2026 loppuun mennessä.
Työturvallisuus
Rakennustyöt aiheuttavat muutoksia Koulumäen liikenne- ja pysäköintijärjestelyihin. Kaikille turvallisen ympäristön takaamiseksi on osoitettuja kulkureittejä, ohjeistuksia ja liikenteen kielto-, opastus- ja varoitusmerkkejä on noudatettava!
Jokaisen työmaalla työskentelevän ja vierailevan henkilön tulee käyttää NCC:n yleisen ohjeen mukaisia suojavarusteita.
Työmaalla suoritetaan viikoittain turvallisuusmittauksia.
Viikon 21 TR- mittaustulos oli 98,20% työmaan sisäisessä mittauksessa.
Työmaa-alueella on työajan ulkopuolella kameravalvonta!
Osana NCC:n työturvallisuusviikkoa työmaalla järjestettin poistumisharjoitus. Harjoituksen tavoitteena oli mm.havannoida tunnistaako työntekijät poistumisreitit, käytetäänkö niitä oikein ja ruuhkautuuko jokin reitti hätätilanteessa. Lisäksi tarkasteltiin kuinka kauan kuluu aikaa rakennuksen tyhjenemiseen.

Työmaatilanne
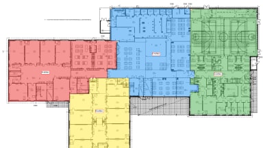
Rakennuksen pohja on jaettu neljään lohkoon (A-D) alla olevan kuvan mukaisesti. Työt etenevät lohkoittan A--> B --> C -->D

Käynnissä olevat työvaiheet:
- Talotekniikan asennustyöt
- Maanrakennustyöt
- Alakattotyöt 2.krs C-lohko
- Vedeneristys- ja laatoitustyöt D-lohko 1.krs
- Sisääntulokatosten puutyöt A-, B- ja C-lohko
- Pihan välituntikatoksen perustusten laudoitus
- Valmistuskeittiön kylmiöiden asennus
- Julkisivun syöksytorvien asennus
- Alakattojen yläpölypuhdistukset A-lohko 2.krs

Kuva: Käytävän lattialaatoitus käynnissä C-lohkolla

Kuva: Pakastimien ja kylmiöiden asennus käynnissä valmistuskeittiössä

Kuva: Valmistuskeittiön huuvien asennus käynnissä.

Kuva: Musiikkiluokan alakattotyöt käynnissä.

Kuva: Välituntikatoksen perustuksista puolet valettu
Valmistuneet työvaiheet:
- Käytävien lattialaatoitukset B-lohko 1.krs
- Epoksilattiat A-lohko 1.krs
- Maalaustyöt C-lohko 1.krs
- Pihan välituntikatoksen perustusten laudoitus
- Pihan välituntikatoksen perustusten valutyöt osa 1
- Syväkeräysastioiden asennus

Kuva: Syväkeräysastiat asennettu

Kuva: Epoksilattiat A-lohkon 1.krs valmistumassa

Kuva: B-lohkon käytävän lattia laatoitettu
Alkavat työvaiheet:
- Alakattotyöt 2.krs D-lohko
- Epokilattiat B-lohko 1.krs
- Sisääntulokatoksien kermityöt
- D-lohkon sisääntulokatoksen teräsrungon asennus
- Pihan välituntikatoksen perustusten valutyöt osa 2
Rakentavin terveisin
NCC Suomi Oy:n työmaan väki
