Viikkotiedote 39-42/2025
NCC rakentaa uuden yläkoulurakennuksen Liedon kaupungille. Rakennettava koulu on noin 500 oppilaan yläkoulu, joka tarjoaa opetusta 7.–9. luokan oppilaille. Uusi koulurakennus valmistuu keväällä 2026. Rakennustöiden valmistuttua tontilla oleva nykyinen yläkoulukäytössä oleva koulurakennus puretaan ja piha-alueet viimeistellään vuoden 2026 loppuun mennessä.
Työturvallisuus
Rakennustyöt aiheuttavat muutoksia Koulumäen liikenne- ja pysäköintijärjestelyihin. Kaikille turvallisen ympäristön takaamiseksi on osoitettuja kulkureittejä, ohjeistuksia ja liikenteen kielto-, opastus- ja varoitusmerkkejä on noudatettava!
Jokaisen työmaalla työskentelevän ja vierailevan henkilön tulee käyttää NCC:n yleisen ohjeen mukaisia suojavarusteita.
Työmaalla suoritetaan viikoittain turvallisuusmittauksia.
Viikon 42 TR- mittaustulos oli 99,23% työmaan sisäisessä mittauksessa.
Viikon 41 TR- mittaustulos oli 99,47% ulkoisessa kalibrointimittauksessa.
Viikon 40 TR- mittaustulos oli 98,43% työmaan sisäisessä mittauksessa.
Viikon 39 TR- mittaustulos oli 99,62 % ulkoisessa kalibrointimittauksessa.
Työmaa-alueella on työajan ulkopuolella kameravalvonta!
Työmaatilanne
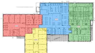
Rakennuksen pohja on jaettu neljään lohkoon (A-D) alla olevan kuvan mukaisesti. Työt etenevät lohkoittan A--> B --> C -->D

Käynnissä olevat työvaiheet:
- Talotekniikan asennustyöt
- Ovien lukitustyöt
- Loppusiivous 1. ja 2.krs
- Urakoitsijoiden itselleluovutukset ja viimeistelytyöt 1. ja 2.krs


Kuvat: Ulkopuolen viimeistelytyöt käynnissä

Kuva: IV-konehuoneen asennukset loppusuoralla

Kuva: Varavoimakoneen katoksen teräsrunko asennettu, katoksen vesikaton puutyöt ja aluskatteen asennus valmis.

Kuva: Ruokalan kabinetit
Valmistuneet työvaiheet:
- Sisäpuolen laakaovien asennus 1.krs
- Liikuntasalivarusteiden asennus
- Kalusteasennukset 1. ja 2.krs
- Listoitustyöt 1.krs C- ja D-lohko
- Varusteasennukset
- Oppilaslokeroidon, pukukaappien ja naulakoiden asennus pääosin
- Varavoimakoneen teräsrunko ja vesikatto
- Katosten peltityöt
- Väestönsuojan koneet asennettu ja painekoe suoritettu hyväksytysti




Kuvat: Pukuhuoneiden kaapit, penkit sekä naulakot, käytävien naulakot ja oppilaslokerikot pääosin asennettu






Kuvat: Viimeistelytyöt käynnissä 1. ja 2 krs

Kuva: Väestönsuojan koneet ja varusteet asennettu
Alkavat työvaiheet:
- Varavoimakoneen asennus
- Liikuntasalin lattia-asennus vko 45
Rakentavin terveisin
NCC Suomi Oy:n työmaan väki
