Viikkotiedote 22-23/2025
NCC rakentaa uuden yläkoulurakennuksen Liedon kaupungille. Rakennettava koulu on noin 500 oppilaan yläkoulu, joka tarjoaa opetusta 7.–9. luokan oppilaille. Uusi koulurakennus valmistuu keväällä 2026. Rakennustöiden valmistuttua tontilla oleva nykyinen yläkoulukäytössä oleva koulurakennus puretaan ja piha-alueet viimeistellään vuoden 2026 loppuun mennessä.
Työturvallisuus
Rakennustyöt aiheuttavat muutoksia Koulumäen liikenne- ja pysäköintijärjestelyihin. Kaikille turvallisen ympäristön takaamiseksi on osoitettuja kulkureittejä, ohjeistuksia ja liikenteen kielto-, opastus- ja varoitusmerkkejä on noudatettava!
Jokaisen työmaalla työskentelevän ja vierailevan henkilön tulee käyttää NCC:n yleisen ohjeen mukaisia suojavarusteita.
Työmaalla suoritetaan viikoittain turvallisuusmittauksia.
Viikon 23 TR- mittaustulos oli 98,1% työmaan sisäisessä mittauksessa.
Työmaa-alueella on työajan ulkopuolella kameravalvonta!
Työmaatilanne
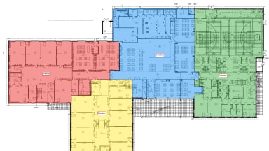
Rakennuksen pohja on jaettu neljään lohkoon (A-D) alla olevan kuvan mukaisesti. Työt etenevät lohkoittan A--> B --> C -->D

Käynnissä olevat työvaiheet:
- Talotekniikan asennustyöt
- Maanrakennustyöt
- Alakattorunkokojen ja tekniikkalevyjen asennus 1.krs A-lohko
- Käytävien lattialaatoitukset C- ja D-lohko 1.krs
- Sisääntulokatosten puutyöt C-lohko
- Valmistuskeittiön koneiden ja laitteiden asennus
- Alakattojen yläpölypuhdistukset C-lohko 2.krs
- Kalusteasennukset 2.krs

Kuva: Kalustetyöt aloitettu 2.krs

Kuva: Alakattolevyt asennettu tarkastusten jälkeen B-lohko 2.krs

Kuva: Käytävien lattialaatoitukset käynnissä 1.krs C- ja D-lohko

Kuva: Luokkahuoneiden epoksilattiapinnoitukset 1.krs B-lohko

Kuva: Sisääkäyntikatosten puutyöt käynnissä
Valmistuneet työvaiheet:
- Pihan välituntikatoksen perustusten valutyöt osa 2
- Välituntikatoksen teräsrungon asennus
- Alakattojen yläpölypuhdistukset A- ja B -lohko 2.krs
- Alakattorunkojen ja tekniikkalevyjen asennus 2.krs
- Julkisivun syöksytorvien asennus
- Sisääntulokatosten puutyöt A- ja B-lohko
- Sisääntulokatosten puutyöt kermityöt A- ja B-lohko
- Epokilattiat B-lohko 1.krs
- D-lohkon sisääntulokatoksen teräsrungon asennus
- Vedeneristys- ja laatoitustyöt D-lohko 1.krs

Kuva: D-lohkon 2.krs alakattorungot ja tekniikkalevyt asennettu

Kuva:Välituntikatoksen teräsrunko asennettu
Alkavat työvaiheet:
- Liikuntasalin lattian tasoitustyöt
- Välituntikatoksen puutyöt
Rakentavin terveisin
NCC Suomi Oy:n työmaan väki
